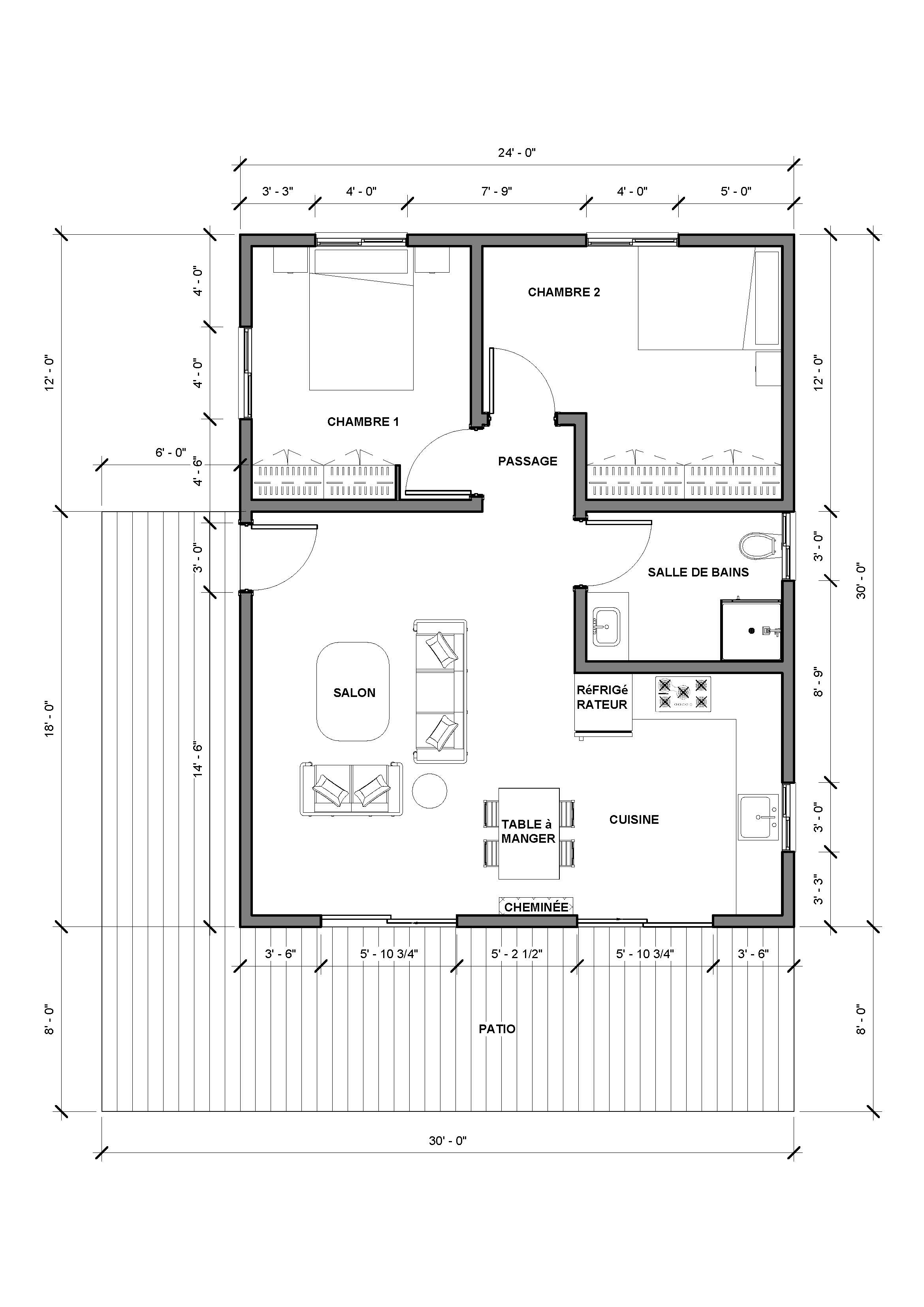
CHALET 7 - INDIVIDUEL - DESCRIPTION
Ce chalet fraichement rénové en 2025 inclut le salon et la cuisine à l'intérieur de la même pièce. Deux chambres fermées qui incluent 6 lits au total ainsi qu'une salle de bain incluant l'eau chaude. Patio de 24 pieds à l'arrière donnant vue sur la baie (et les couchers de soleils).
CARACTÉRISTIQUES DE L'UNITÉ
CAPACITÉ D'OCCUPATION |   | SALLE DE BAIN | ||
| Minimum : 4 Maximum : 6 |   | Cette unité à une douche, une toilette et un lavabo. Eau chaude et froide. |
CHAMBRES DANS L'UNITÉ |   | ÉLÉMENTS DE LA CUISINE | ||
| Deux. Chaque chambre est fermée. |   | Tous les éléments essentiels sont inclus. Assiettes, verres, ustensiles, chaudrons, etc. |
NOMBRE DE LITS |   | LOCALISATION | ||
| Six. Deux lits double avec un lit simple superposé dans la chambre 1. Un lit double et deux lits 3/4 superposés dans la chambre 2. Literie non-incluse. |   | Cette unité est située à 80 mètres du chalet principal. |
